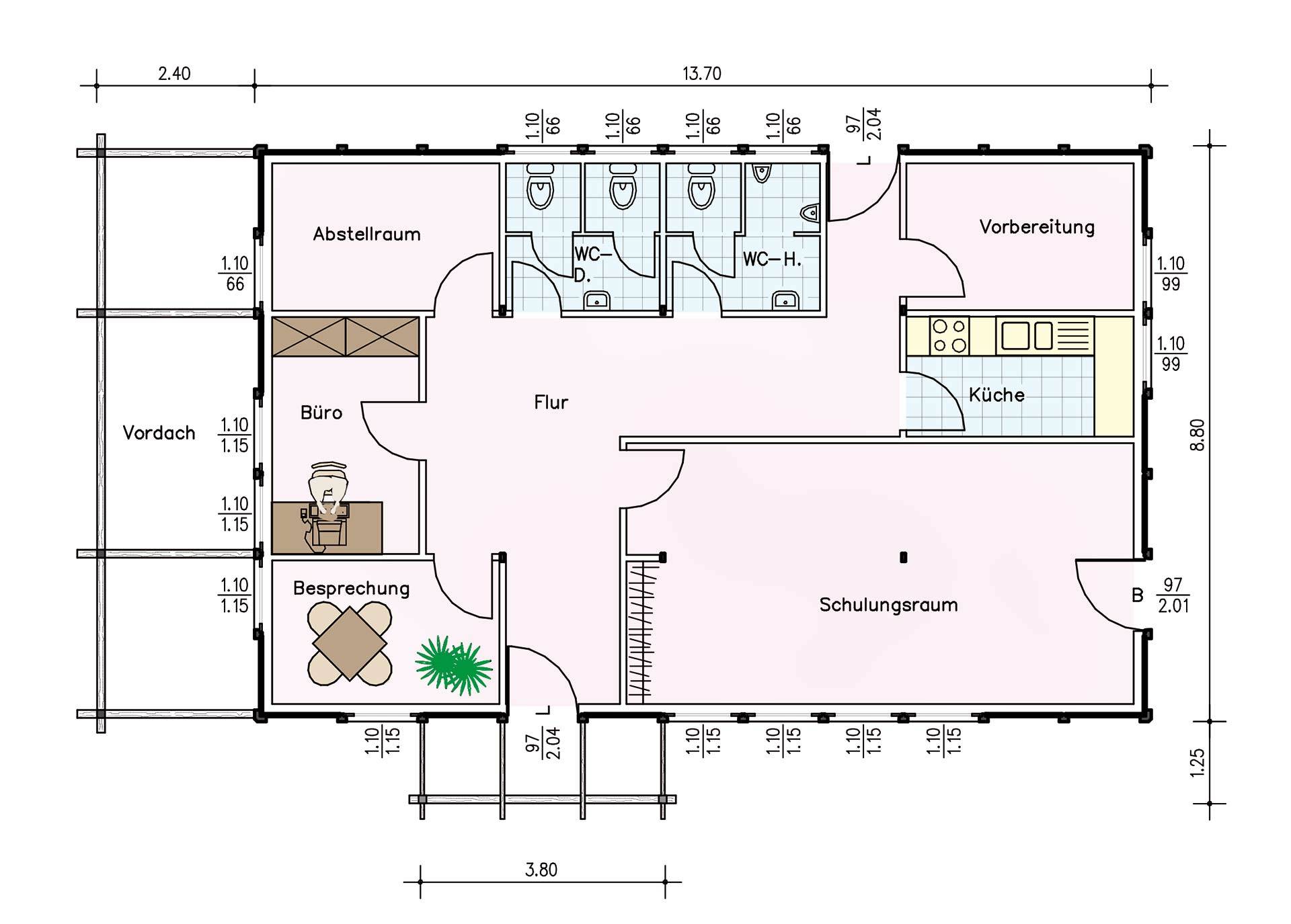
Im 3|S-Mehrzweckhaus werden gern Schulungsräume und Versammlungsräume eingerichtet. Die große, freie Halle eignet sich optimal dafür. Das Haus sieht ansprechend aus, ist umweltfreundlich und vor allem rundherum gut gesichert. Der hervorragende Schallschutz und optimale Brandschutz sind wichtige Vorteile der 3|S-Massivhaus-Konzeption.
Die notwendigen Nebenräume, wie Teeküche und Sanitäranlage, werden nach Bedarf eingeplant, ebenso die gesetzlich vorgeschriebenen Fluchtwege. Die freie Grundrissplanung ist ein wichtiger Vorteil der 3|S-Massivbauweise. Die tragenden Wände sind außen. Die Leichtbauwände innen können Sie variabel nach Bedarf einsetzen. Wahlweise ein offener, großer Raum. Diese Vorteile verbunden mit dem hervorragenden Einbruchschutz lassen viele das Haus Bergland auch als Gaststätte und Clubraum nutzen.
Technische Daten
Sie interessieren sich für dieses Produkt oder haben Fragen hierzu? Rufen Sie uns an, schreiben Sie uns oder nutzen Sie unser Kontaktformular.